30tpd wheat flour mill plant technical data:
1. capacity: 30 ton of input of wheat per 24hours
2. flour extraction rate: standard flour 75%-78%(adjustable)
3. power supply: about 90kw with flour packing system/ 380V, 50 Hz, 3 phase
4. power consumption: 55 kw/h in processing one ton of wheat
5. workshop style and dimension: workshop with 12m long, 5m wide and 4.5m
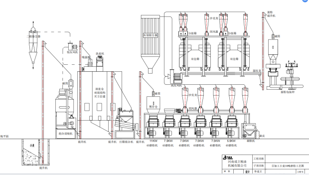
Processing
1. technology of cleaning parts: one set of three-in-one cleaner, one set of washer-stoner, one set of clean wheat scourer and one set of plane revolve sifter, consists of twice screening, twice de-stone, twice scouring, once washing twice Magnetic Separator and twice air separation.
2. Technology of flour milling parts: six sets of 6F 2240 roller mill, consists of 4B (breaking system) and 2R (reduction system).
Application and After-Sales Service
Warranty: one year after successful commissioning
Training: we offer free training of your workers
Expected installation time:about 20-40 working days for one engineer
